top of page
T
W
I
N
H
O
U
S
E
S

TWIN HOUSE + ROOF PLAN

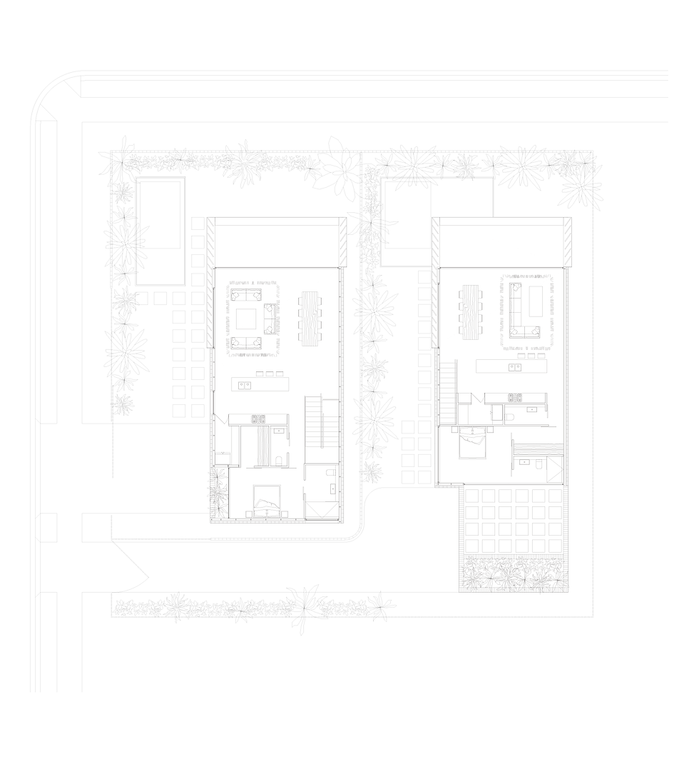
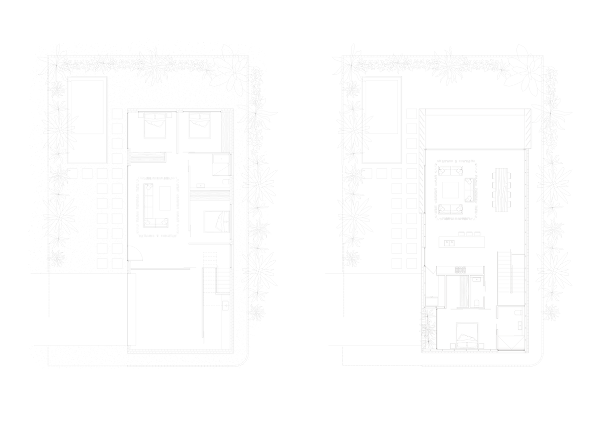
TWIN HOUSE + FLOOR PLAN + 00

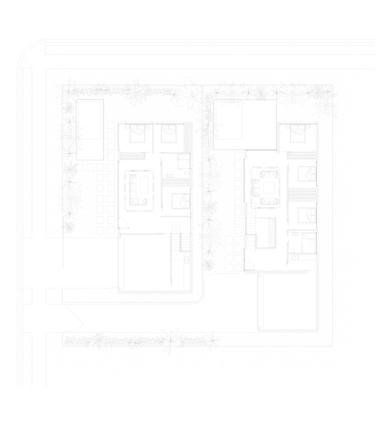
TWIN HOUSE + FLOOR PLAN + 01

TWIN HOUSE + ROOF PLAN
1/3
LENNOX HEAD, NSW
2021
The Twin House design was created for two best friends, both experienced in the construction industry, with the intention of becoming owner builders together. The generous site was acquired and subdivided to provide both houses with alike ocean views. The materiality, texture and form stem from the nostalgia of the coastal shack. A place, light and unimposing, situated within a nest of subtropical foliage. The design makes consideration for Passive Haus methodologies deeply embraced and researched by both owners and negates complying development restrictions and issues of overlooking and privacy whilst optimising views outward over the cherished Northern Rivers Region.
bottom of page








